Svarbu! Siekdami užtriktinti sklandų svetainės veikimą mes naudojame slapukus. Ar sutinkate su mūsų
privatumo politika
?
Sutinku
/
Jeigu nesutinkate, spauskite čia.
Apie mus
Gamintojai
Produktai
Akcijos
Kontaktai
lt
Meniu
Šildymo sistemos
Vėdinimo ir kondicionavimo sistemos
Židiniai, krosnelės, priedai
Vonios kambario ir virtuvės įranga
Saulės elektrinės
Titulinis >
Gamintojai >
Laufen, Šveicarija
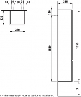
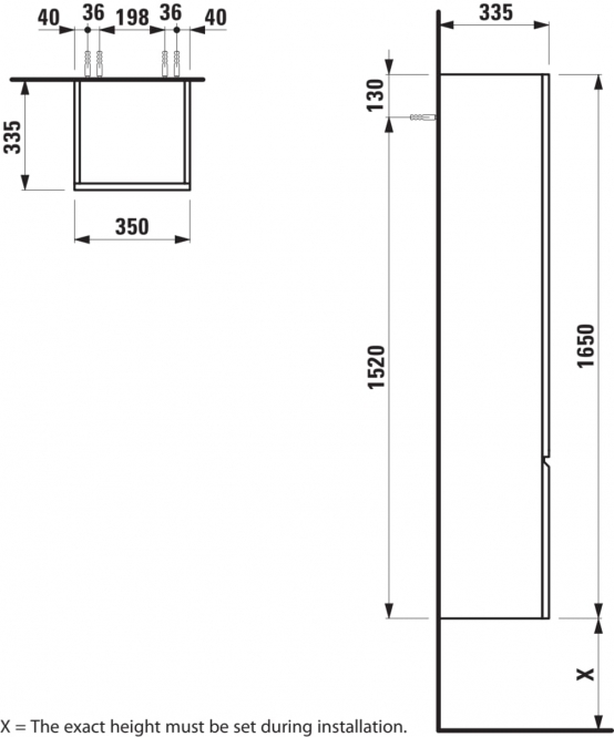
Aukšta spintelė Laufen PRO S 350x335x1650 mm, 1 durelės, lankstai kairėje, 4 lentynėlės, spalva - balta blizgi
Ankstesnė prekė
1449 / 1679
Kita prekė
Grįžti į sąrašą
Prekės kodas: 83121-095475
810,00 €
Detalesnės informacijos ir kainos teirautis:
tel. +370 620 68632
Siųsti užklausą CELSIS